当前位置: 首页 > 知识产权交易 > 专利转让 >

待交易一种用于地埋式污水处理设备的增高室

专利号:CN202022334969.6 已授权

申请日:2023-02-01发布日期:2023-02-01

立即收藏 立即询价 转让价格:询价

专利摘要

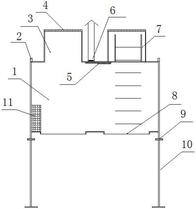
本实用新型公开了一种用于地埋式污水处理设备的增高室,包括增高筒、增高室和增高柱,所述增高筒设置在增高室的上方,该增高筒上设有筒盖,增高筒内设有由增高筒上部向下延伸至增高室的爬梯,所述增高室的顶固设有通风口,该增高室的底部设置有与地埋式污水处理设备相连的检修口,增高室的侧边固定设有防潮电箱,所述增高柱固定在增高室的下方,该增高柱固定在地埋式污水处理设备安装的基础上。本实用新型具有增加地埋式污水处理设备埋深的作用,并且具备进行地埋式污水处理设备的运行维护、检修等操作的条件。

交易流程

  • 平台资深顾问将根据买家的需求,提供一对一服务,协助买家挑选到合适的专利。

  • 待买家确认无误后,根据顾问指导进行下单,并签订协议与合同,买家需要支付50%交易款给平台。

  • 平台将负责办理官方变更手续,向国知局提交转让材料。

  • 约10个工作日左右,待买家确认收到专利《变更手续合格通知书》后,向平台支付剩余交易款。

  • 转让成功后,平台会将专利证书原件、专利登记簿副本原件邮寄给买家,同时把交易尾款支付给卖家,保障双方交易顺利。

过户资料

主体资格 转让方提供 受让方提供 平台提供 转让完成,可获得
自然人 身份证复印件,专利证书原件; 身份证复印件
有效个体营业执照
转让申请书
代理委托书
转让协议书
发明人变更声明
专利证书
手续合格通知书
专利登记簿副本
公司 有效的企业营业执照副本复印件,专利证书原件 有效的企业营业执照副本复印件;企业组织机构代码证
平台专属代理事务所将对委托交易全程监督,确保所有交易合同及相关文件合法有效。

发布求购信息