当前位置: 首页 > 知识产权交易 > 专利转让 >

待交易一种复合轻质防护密闭门

专利号:CN201921526641.5 已授权

申请日:2023-02-02发布日期:2023-02-02

立即收藏 立即询价 转让价格:询价

专利摘要

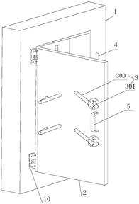
本实用新型公开了一种复合轻质防护密闭门,包括门框、门扇和多个闭锁机构,所述门框预埋在混凝土墙体中,在所述门扇背面的上下边缘设置有门栓,所述门扇闭合在门框内时,所述门栓插入至门框的顶端和底端内,所述门扇包括金属包边框架和复合轻质门板体,所述门板体的四周套设固定在所述金属包边框架内,该金属包边框架的一侧边缘通过门铰铰接所述门框,多个所述闭锁机构转动设置在复合轻质门板体上,所述门栓与所述闭锁机构传动连接。本实用新型防护密闭门操作简单,且质量轻,强度高,抗热氧老化性能好,安装方便安全。

交易流程

  • 平台资深顾问将根据买家的需求,提供一对一服务,协助买家挑选到合适的专利。

  • 待买家确认无误后,根据顾问指导进行下单,并签订协议与合同,买家需要支付50%交易款给平台。

  • 平台将负责办理官方变更手续,向国知局提交转让材料。

  • 约10个工作日左右,待买家确认收到专利《变更手续合格通知书》后,向平台支付剩余交易款。

  • 转让成功后,平台会将专利证书原件、专利登记簿副本原件邮寄给买家,同时把交易尾款支付给卖家,保障双方交易顺利。

过户资料

主体资格 转让方提供 受让方提供 平台提供 转让完成,可获得
自然人 身份证复印件,专利证书原件; 身份证复印件
有效个体营业执照
转让申请书
代理委托书
转让协议书
发明人变更声明
专利证书
手续合格通知书
专利登记簿副本
公司 有效的企业营业执照副本复印件,专利证书原件 有效的企业营业执照副本复印件;企业组织机构代码证
平台专属代理事务所将对委托交易全程监督,确保所有交易合同及相关文件合法有效。

发布求购信息