当前位置: 首页 > 知识产权交易 > 专利转让 >

待交易一种用于施工升降机标准节的拼焊支撑模

专利号:CN201920327568.2 已授权

申请日:2023-02-03发布日期:2023-02-03

立即收藏 立即询价 转让价格:询价

专利摘要

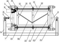
本实用新型公开了一种用于施工升降机标准节的拼焊支撑模,包括底座、旋转框架和气动装置,在所述底座的两端竖直设置有三角支撑架,所述旋转框架通过轴承座安装在三角支撑架的顶端,所述气动装置固定在所述旋转框架上,所述旋转框架包括左端头、右端头、调节螺杆和定位支撑件,所述调节螺杆、定位支撑件分别水平连接在左端头和右端头的端部之间,所述左端头和右端头别通过轴承座固定在底座两端的三角支撑架上,在左端头上分别设置四个呈方形排列的气动装置,在右端头上且沿每个气动装置的输出轴延伸方向的一侧设置有第一托起部。本实用新型的标准节拼焊模提高了标准节的定位和焊接精度,而且降低了人工的劳动强度。

交易流程

  • 平台资深顾问将根据买家的需求,提供一对一服务,协助买家挑选到合适的专利。

  • 待买家确认无误后,根据顾问指导进行下单,并签订协议与合同,买家需要支付50%交易款给平台。

  • 平台将负责办理官方变更手续,向国知局提交转让材料。

  • 约10个工作日左右,待买家确认收到专利《变更手续合格通知书》后,向平台支付剩余交易款。

  • 转让成功后,平台会将专利证书原件、专利登记簿副本原件邮寄给买家,同时把交易尾款支付给卖家,保障双方交易顺利。

过户资料

主体资格 转让方提供 受让方提供 平台提供 转让完成,可获得
自然人 身份证复印件,专利证书原件; 身份证复印件
有效个体营业执照
转让申请书
代理委托书
转让协议书
发明人变更声明
专利证书
手续合格通知书
专利登记簿副本
公司 有效的企业营业执照副本复印件,专利证书原件 有效的企业营业执照副本复印件;企业组织机构代码证
平台专属代理事务所将对委托交易全程监督,确保所有交易合同及相关文件合法有效。

发布求购信息